TEST A
(1) The following materials were supplied:
(a) one flat mild steel plate, 105 mm x 125 mm x 3 mm (2 OFF);
(b) set screw, M6, (2 OFF);
(c) one cotton bag, 80 mm x 110 mm;
(d) two tie-on labels.
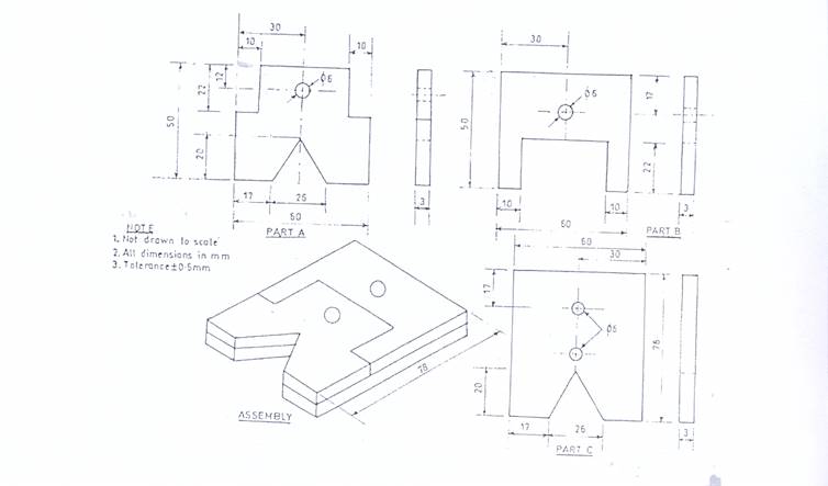
(2) The diagram below shows the assembly and detailed views of each part of a fitting exercise. Using the materials supplied, prepare the parts and assemble the pieces.
